北兼康町
1,980万円
今出川駅 徒歩約7分
ロジナカの中古住宅
地下鉄烏丸線『今出川駅』徒歩約7分
同志社大学新町キャンパスそばの
閑静な住宅街にある中古住宅。
今出川駅の北西に位置する、路地中の中古住宅のご紹介です。
物件所在地の上京区は隣接する繁華・ビジネス色が強い中京区に対して、有名な寺社・史跡が多く残り、西陣織などの名だたる工芸で有名な区です。南北には京都の主線である地下鉄烏丸線が通ります。本物件の最寄り駅である『今出川駅』は『京都御苑』と『同志社大学(今出川キャンパス)』『相国寺』の最寄り駅でもあります。周囲の史跡と教育機関の多さから、教育と歴史が息づく街と言えるでしょう。
室町幕府の由来となった、足利氏栄華の址『花の御所』の石碑も近くにあることから激動の室町時代後期~戦国時代と縁のある場所も多く、歴史好きには退屈しない場所です。
さらに物件から北側は茶道の表千家・裏千家の拠点であるお屋敷がある地域で一帯の道が石畳になっており京都風情漂う場所として有名です。
物件は今出川通から1本北側にある東西を通る路地の中にあります。
また、この辺りは学生の住宅が多いので学生向けの飲食店、カフェやコーヒーショップが多くあります。お値打ち価格で外食ができるのもポイント。
地下鉄烏丸線は京都の玄関口JR『京都駅』にも直結しており、物件最寄りの『今出川駅』から『京都駅』までは地下鉄で約10分(運賃は片道260円)のアクセス。京都伊勢丹でちょっと買い物したいなというときもお店まで30分とかからないアクセスは魅力です。生活雑貨や食品などを求めて大きめのショッピングセンターに行きたいときは2つ北隣の駅である『北大路駅』直結の『北大路イオン』があります。
大学に通学する家族と会うための拠点、京都を満喫するための二拠点生活のセカンドハウスとしてお使いいただけます。街中がいいけど比較的静かな場所に住みたいといった方にオススメの物件です。
上京区総合庁舎(徒歩約3分、約240m)、生活の様々な公的手続きに欠かせない区役所。人日、上巳、端午、七夕、重陽などの節句によって上京地区の展示があり、それを眺めるのも楽しい(2023年9月撮影)
今出川通を東に進めば鴨川の支流である賀茂川を眺めることができる橋へ。河川敷ではジョギングやサイクリングをする人たちが行き交い、鴨川デルタでは子どもたちが飛び石で遊んでいる様子が見られる。
『京都御苑』の中にある『建礼門』。京都御所は昔から生い茂る樹木に囲まれた静かな場所。春秋の公開では観光客でにぎわう。地域の人にとっては自然が感じられる良いお散歩コースだ。すぐ北に『同志社大学今出川キャンパス』と『相国寺』があり、文化・歴史的な地域であることがうかがえる。
地下鉄烏丸線沿線
京都駅へのアクセスも◎


同志社大学
新町キャンパスが近い
閑静な住宅街
堀川通方面、徒歩5分
圏内にスーパー・病院等
有で生活利便が良好

本物件を使用するには改修が必要ですが、光徳では軽い水回りの修繕から和の趣のあるリノベーションまで承っておりますのでお気軽にご相談ください。


◆ 今出川駅 徒歩約7分 ロジナカの中古住宅 周辺の情報 ◆
- コンビニ:
- ファミリーマート 京都今出川針屋町店(徒歩約2分 約140m)
セブン-イレブン 京都烏丸今出川店(徒歩約6分 約420m) - スーパー:
- 生鮮館なかむら 堀川店(徒歩約5分 約360m)
フレスコ 堀川今出川店(徒歩約5分 約370m) - ファストフード:
- サイゼリヤ 今出川駅前店(徒歩約5分 約400m)
CoCo壱番屋 烏丸今出川店(徒歩約6分 約476m)
モスバーガー烏丸今出川店(徒歩約6分 約480m) - お買い物スポット:
- イオンモール北大路(徒歩約23分 約1820m)
イズミヤショッピングセンター 白梅町(徒歩約29分 約2300m)
洛北阪急スクエア(徒歩約39分 約3100m) - 市役所(区役所):
- 上京区総合庁舎(徒歩約3分 約240m)
- 図書館:
- 京都市北図書館(徒歩約23分 約1800m)
京都市中央図書館(徒歩約35分 約2760m) - 公園:
- 小川児童公園(徒歩約2分 約150m)
- 病院・調剤薬局:
- 西陣健康会クリニックほりかわ(徒歩約4分 約300m)
堀川病院(徒歩約5分 約350m)
アイン薬局 堀川店(徒歩約4分 約310m) - ドラッグストア:
- ダックス 上京堀川今出川店(徒歩約4分 約320m)
- 最寄りの駅:
- 地下鉄烏丸線 「今出川駅」2番出口(徒歩約7分 約490m)
- 最寄りのバス停:
- 京都市バス「上京区総合庁舎前」停(徒歩約3分 約240m)
- 幼稚園(保育園):
- 京都市立みつば幼稚園(徒歩約3分 約188m)
- 小学校:
- 京都市立新町小学校(徒歩約10分 約730m)
- 中学校:
- 京都市立上京中学校(徒歩約10分 約780m)
- 観光地:
-
相国寺(徒歩約8分 約630m)
京都御所 乾御門(徒歩約9分 約705m)
北野天満宮(徒歩約24分 約1880m)
賀茂御祖神社(下鴨神社)(徒歩約27分 約2150m) - レジャー:
- 京都府立植物園(徒歩約36分 約2880m)
| 物件案内 | 中古戸建 |
|---|---|
| 物件名 | 今出川駅 徒歩約7分 ロジナカの中古住宅 |
| 価 格 | 1,980万円(税込) |
| 所在地 | 京都市上京区今出川通小川東入北兼康町286番地1 |
| きょうとし かみぎょうく きたかねやすちょう | |
| 交 通 | 地下鉄烏丸線 『今出川駅』2番出口 徒歩約7分 |
| 京都市バス『上京区総合庁舎前』停 徒歩約3分 | |
| 土地面積 | 約68.26m² (約20.64坪) |
| 私 道 | 有 約30.11m² |
| セットバック | 有 約0.77m² |
| 土地権利 | 所有権 |
| 地 目 | 宅地 |
| 地 勢 | 平坦 |
| 接道状況 | 南側私道、幅員約2.8mに約4.5m接する |
| 建築面積 | 延べ:約46.93m²(約14.19坪)1階:約25.45m² 2階:約21.48m² |
| 建物構造 | 木造 |
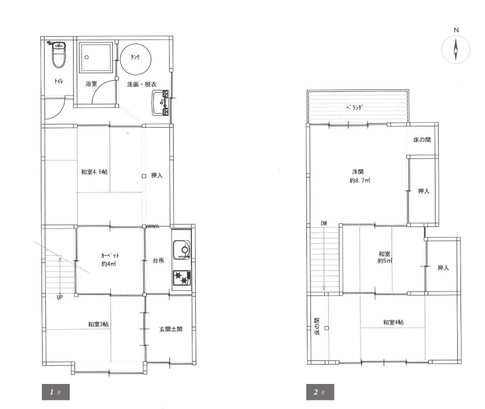
| 間 取 | 6K |
| 築年月 | 不詳 |
| 駐車場 | 無 |
| 設 備 | 上下水道・電気・ガス |
| 都市計画 | 市街化区域 |
| 地域地区 | 準防火地域 |
| 用途地域 | 準工業地域 |
| 建ぺい率 | 60% |
| 容積率 | 200% |
| 国土法届 | 不要 |
| 制限事項 | 15m第3種高度地区/西陣特別工業地区/屋外広告物第3種地域/旧市 街地型美観地区/近景デザイン・遠景デザイン保全区域/事前協議区域/西陣特別工業地区/居住誘導区域/既成都市区域/宅地造成等工事規制区域 等 |
| 現 況 | 空家 |
| 引渡し | 相談 |
| 小学校 | 新町小学校(徒歩約10分 約730m) |
| 中学校 | 上京中学校(徒歩約10分 約780m) |
| 備 考 | ■増築未登記部分有 ■仮測量図によると、有効宅地面積:41.67㎡ 私道負担面積:30.88㎡ (セットバック面積を含む) ■改修相談賜ります |
| 取引態様 | 売主 |
| 最終更新日 | 2025/4/18 |
物件へは、小川今出川の交差点を北に進み、東側にある路地の入口から先へお進みください。










