南丹市美山町
7,000万円
美山町島 かやぶき古民家の宿泊施設
ゆるやかな時の流れと美しい自然を堪能できる
美山かやぶき由良里街道沿いの宿泊施設
大自然を満喫できる、美山静原エリア近辺の物件のご紹介です。
色づく山々の紅葉、やわらかい日差しを映す川の煌めき、谷を渡るすこしひんやりとした風に秋の訪れを感じる。稲穂が揺れる黄金の畑とそれを見守るようにたたずむ、かやぶき屋根の家屋。郷愁を誘う四季に愛された日本の原風景美山。
物件の近くの主要道路である「美山かやぶき由良里街道(物件前は府道368号線)」の道沿いには、自然と共に生きる日本の原点とも言えるかやぶき屋根の集落が点在します。この地域はかやぶき屋根の住宅を代表とする入母屋造りの建物が数多くのこる民俗歴史的にも貴重なエリアです。山々の緑とそのたたずまいがどこか懐かしいような優しい気持ちにしてくれます。
春には大野ダムや山里の桜が彩を添え、夏は川遊びやキャンプなどの美山で楽しむことができるレジャー・アクティビティが楽しい季節です。秋には山々が紅に色づき、冬は積雪によるかやぶき屋根の雪化粧をみることができます。
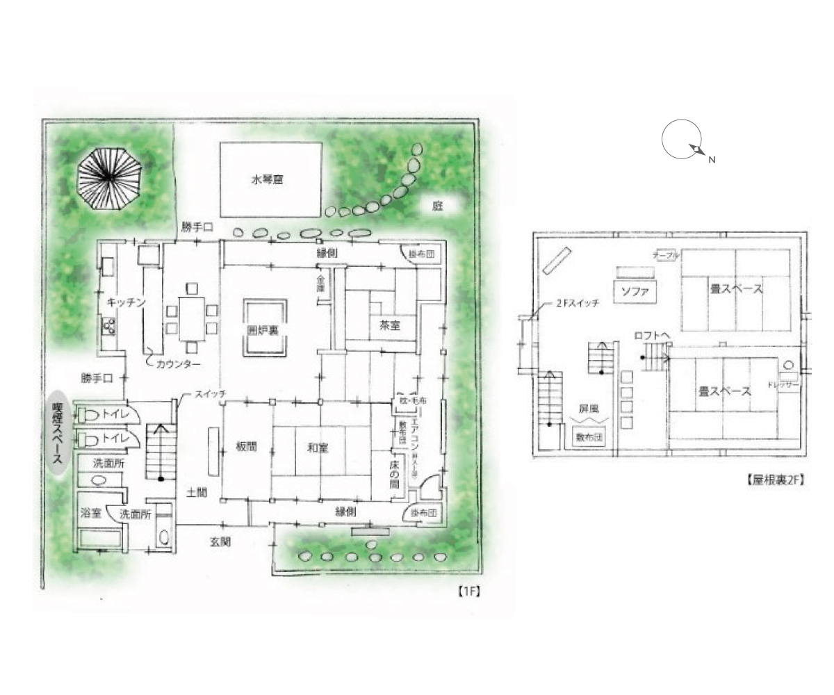
本物件は、街中の喧騒から離れ、自然の恵みと四季の訪れに心を喜ばせ、山々の緑に癒される、そんな暮らしができる6LDKのお家です。
本物件は現在も宿泊施設として運営されており、美山の山里の暮らしが体験できるかやぶき屋根の住宅として人気のお宿です。また当物件は、美山に点在する集落に近く、簡単な生活必需品はすぐ隣の静原エリアで買い求めることができます。地元の方のお話では、まとまったお買い物は車に乗って市街地の「園部」までいく方が多いようです。
各地から観光客が訪れる「美山かやぶきの里」は、街道を車で東に進むこと約18分(12.1km)の距離で、車やバイクをお持ちであれば気軽にアクセスできる観光名所です。
レジャーシーズンは、由良川の河原でバーベキューをしたり、川遊びをしたり、キャンプが身近に楽しめます。美山は、風景の美しさを堪能したり山間を走り抜ける爽快感から、ツーリングのコースとしても有名です。ライダーのサイクルステーションも村々に点在しています。
利便性よりも、先人の知恵が詰まった建物で過ごすという「癒し」「体験」「暮らし」を重視する方にオススメです。
由良川にはところどころ浅く川の流れが緩やかなところがあり、そのような場所では川遊びも可能。
かやぶきの里へは車(時速40㎞)で 約18分の距離。かやぶき屋根の佇まいと山を彩る草木が美しい花里の村。
世界各地から日本の原風景を見ようと訪れるかやぶきの里は、春夏秋と季節の花が風に揺れている。また冬のかやぶき屋根の雪化粧は、花揺れる山里とは一味違った情緒を楽しめる。
大自然の中で
のびやかな
暮らしができる


リノベ済・屋根裏あり
かやぶき屋根の住宅
かやぶきの里・キャンプ場・
大野ダム公園など
気軽におでかけできる
レジャースポットが充実

趣向を凝らした設計のお宅。囲炉裏があり、火を囲んで昔そのままの暮らしを体験できる住宅です。


| 物件案内 | 古民家宿泊施設 |
|---|---|
| 物件名 | 美山町島 かやぶき古民家の宿泊施設 |
| 価 格 | 7,000万円(税込) |
| 所在地 | 京都府南丹市美山町島英サ29番地 |
| なんたんし みやまちょうしま はなぶさ | |
| 交 通 | JR山陰本線『和知駅』から南丹市営バスにて 約30分 |
| 南丹市営バス『佐本橋』徒歩約3分 | |
| 土地面積 | 756.56m² (約228.85坪) |
| 私 道 | 無 |
| 土地権利 | 所有権 |
| 地 目 | 宅地 |
| 地 勢 | 平坦 |
| 接道状況 | 北西側公道、幅員約3.6mに約29m接する |
| 建築面積 | 延べ:162.28m²(約49.08坪) 1階:162.28m² |
| 建物構造 | 木造草葺平屋建 |
| 間 取 | 6LDK |
| 築年月 | 不詳 |
| 駐車場 | 無 |
| 設 備 | 南丹市営公営水道/集落排水(下水)/プロパンガス |
| 都市計画 | 都市計画区域外 |
| 地域地区 | - |
| 用途地域 | - |
| 建ぺい率 | - |
| 容積率 | - |
| 国土法届 | 不要 |
| 制限事項 | 景観計画区域 南丹市美山町地域 山里自然エリア 等 |
| 現 況 | 居住中 |
| 引渡し | 期日指定(6ヵ月) |
| 備 考 | ■付属建物:符号1/種類倉庫 ■屋根裏部屋あり ■動産は売買対象に含みません ■国有形登録文化財 ■宿泊施設として運営中 |
| 取引態様 | 仲介(一般) |
| 最終更新日 | 2025/11/6 |
主要道路(美山かやぶき由良里街道:府道368号線)から少し入った場所にあるお宅です。
※グーグルマップにプロットされている「茅葺き一棟貸し古民家 美山FUTON&Breakfast」は宿泊施設の受付であり対象物件ではありません。










