西七条中野町
1,780万円
梅小路京都西エリアの2階建て作業所
JR山陰本線『梅小路京都西駅』徒歩約11分
梅小路京都西エリアの
2階建て作業所
『梅小路京都西駅』の西に位置する未改装物件のご紹介です。
物件所在地の下京区はお隣の中京区と同じようにビジネス色が強い区です。『JR京都駅』『伊勢丹』をはじめ、『東本願寺』『西本願寺』『東寺』『京都タワー』『梅小路公園』『京都鉄道博物館』『京都市水族館』などの交通拠点・観光・レジャー施設があつまっています。
物件は『七条御前』の交差点の北西に位置し、『七条通』という大通りからは一本北の通りにあたります。『御前通(おんまえどおり)』という名前は上京区の『北野天満宮』から物件ご近所の『綱敷行衛天満宮』『吉祥院天満宮』と京都の数ある天満宮に通じるのでその前を通るという意味で呼ばれるようになったという説もあり、昔から重要な道の一つだったことがうかがえます。
昨今『梅小路公園』周辺の開発が進んでおり、物件所在地である『梅小路京都西エリア』は宿泊施設や飲食施設、文化施設の充実化がすすむ注目の地域でもあります。そのため物件周辺は住宅街でありながらも手軽に足を運べるお総菜屋・ラーメン屋・ハンバーガーショップ、スターバックスコーヒーなどのファストフードをはじめとする飲食店が数多くあります。また、生活用品をそろえるためのドラッグストアやスーパーも徒歩5分圏内です。 さらにはイオンモールやヨドバシカメラなどの大型商業施設も約2kmの圏内に点在し、気分によって買い物の行き先を選べる立地です。また、『京都市立病院』という救急ありの大型病院も近いのでいざという時に心強いです。
その他の近隣の施設としては『京都リサーチパーク』のほかに『京都中央卸売市場』があり、物流が集まる場所としても有名。特に青果や水産部では一般の方に対してオープンで『京の食文化ミュージアム・あじわい館』『水産棟見学エリア』などのレジャー施設もあります。
『梅小路京都西駅』は徒歩約11分(約880m)の距離で『梅小路公園』『京都鉄道博物館』『京都水族館』の最寄り駅。京都駅まで1駅です。新しさとなつかしさが共存する『梅小路京都西エリア』近くで新しい生活を始めてみてはいかがでしょうか。
下京区総合庁舎(徒歩約25分 約2000m)。引っ越し、健康保険関係、生活関連の手続きはこちら(2024年8月撮影)
『JR京都駅』前の『京都ニデックタワー』は京都のランドマーク。近くには『ヨドバシカメラマルチメディア京都』『京都伊勢丹』『京都ポルタ』『アバンティ』などのお買い物スポットが密集し、様々なシーンのお買い物が楽しめる。
『梅小路公園(西側広場)』で第一土曜日に毎月開催されている『梅小路手づくり市』は一つの観光スポットになるくらい有名。お散歩県内の手づくり市でお気に入りの逸品が見つかるかも?(2023年12月撮影)
JR山陰本線『梅小路京都西駅』
京都駅まで1駅


飲食・スーパー・病院が
近く生活利便が良い
開発が進む
梅小路京都西
エリアの物件

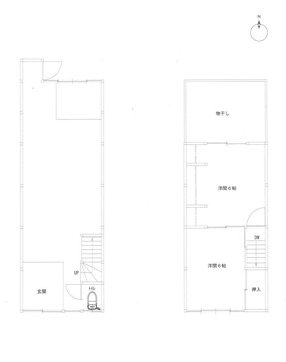
1階は土間の作業スペースになっており、二階は洋室2部屋の間取りです。生活には改装が必要です。株式会社光徳では購入に加えて改装の相談も承っておりますので、お気軽にご相談ください。


◆ 梅小路京都西エリアの2階建て作業所 周辺の情報 ◆
- コンビニ:
- ファミリーマート 京都西七条店(徒歩約3分 約230m)
ローソンストア100 七条七本松店(徒歩約4分 約260m) - スーパー:
- コレモ 七条店(徒歩約6分 約410m)
セントラルスクエア西大路花屋町店(徒歩約10分 約740m)
ライフ西七条店(徒歩約5分 約400m) - ファストフード:
- スターバックス コーヒー TSUTAYA 京都リサーチパーク店(徒歩約10分 約770m)
なか卯 西京極七条店(徒歩約11分 約870m)
スターバックスコーヒー 梅小路公園店(徒歩約12分 約890m)
モスバーガー五条七本松店(徒歩約12分 約960m)
マクドナルド 西大路五条店(徒歩約14分 約1100m) - お買い物スポット:
- イオン京都洛南店(徒歩約19分 約1500m)
イオンモール京都五条(徒歩約21分 約1650m)
ヨドバシカメラ マルチメディア京都(徒歩約29分 約2280m) - 市役所(区役所):
- 下京区総合庁舎(徒歩約25分 約2000m)
- 図書館:
- 京都市下京図書館(徒歩約35分 約2800m)
- 郵便局:
- 郵便局 春日局 (徒歩約8分 約600m)
- 公園:
- 石ヶ坪公園(徒歩約6分 約460m)
- 病院・調剤薬局:
- 京都南病院(徒歩約3分 約190m)
京都市立病院(徒歩約12分 約900m)
アイン薬局 七条店(徒歩約3分 約200m) - ドラッグストア:
- シミズ薬局 本店(徒歩約4分 約260m)
- 最寄りの駅:
- JR山陰本線『梅小路京都西駅』(徒歩約11分 約880m)
- 最寄りのバス停:
- 京都市バス『七条御前通停』(徒歩約2分 約130m)
- 保育所(保育園):
- チャイルドハウスみなみ(徒歩約2分 約95m)
さわやか保育園(徒歩約4分 約255m) - 小学校:
- 京都市立七条第三小学校(徒歩約7分 約520m)
- 中学校:
- 京都市立七条中学校(徒歩約4分 約275m)
- 観光地:
- 西本願寺(徒歩約19分 約1520m)
東寺(徒歩約28分 約2240m)
- レジャー:
- 京都鉄道博物館(徒歩約12分 約930m)
京の食文化ミュージアム・あじわい館(徒歩約13分 約1040m)
京都水族館(徒歩約17分 約1330m)
| 物件案内 | 中古戸建 |
|---|---|
| 物件名 | 梅小路京都西エリアの2階建て作業所 |
| 価 格 | 1,780万円(税込) |
| 所在地 | 京都市下京区西七条中野町12番地12 |
| しもぎょうく にししちじょうなかのちょう | |
| 交 通 | JR山陰本線 『梅小路京都西駅』 徒歩約11分 |
| 京都市バス『七条御前通停』 徒歩約2分 | |
| 土地面積 | 43.66m² 約13.2 坪 |
| 私 道 | 無 |
| セットバック | 無 |
| 土地権利 | 所有権 |
| 地 目 | 宅地 |
| 地 勢 | 平坦 |
| 接道状況 | 南側公道、幅員3.6mに約5.8m接する |
| 建築面積 | 延べ:57.10m²(約17.27坪)1階:30.15m² 2階:26.95m² |
| 建物構造 | 木造 |
| 間 取 | 2部屋+作業スペース |
| 築年月 | 昭和51年1月16日 |
| 駐車場 | 無 |
| 設 備 | 公営上下水道/都市ガス/電気 |
| 都市計画 | 市街化区域 |
| 地域地区 | 準防火地域 |
| 用途地域 | 準工業地域 |
| 建ぺい率 | 60% |
| 容積率 | 200% |
| 国土法届 | 不要 |
| 制限事項 | 20m第3種高度地区/市街地型美観形成地区/遠景デザイン保全区域/近景デザイン保全区域/ 屋外広告物規制第5種地域/都市機能誘導区域/居住誘導区域/宅地造成等工事規制区域 他 |
| 現 況 | 空家 |
| 引渡し | 相談 |
| 小学校 | 七条第三小学校(徒歩約5分 約400m) |
| 中学校 | 七条中学校(徒歩約5分 約360m) |
| 備 考 | ■増築未登記部分(箇所面積不明)有 |
| 取引態様 | 専任 |
| 最終更新日 | 2026/1/20 |
物件は『七条御前』の交差点の北西にあります。七条通の一本北側の通りを西にお進みください。









